
Dupont Revival
Dupont Circle
Washington, DC
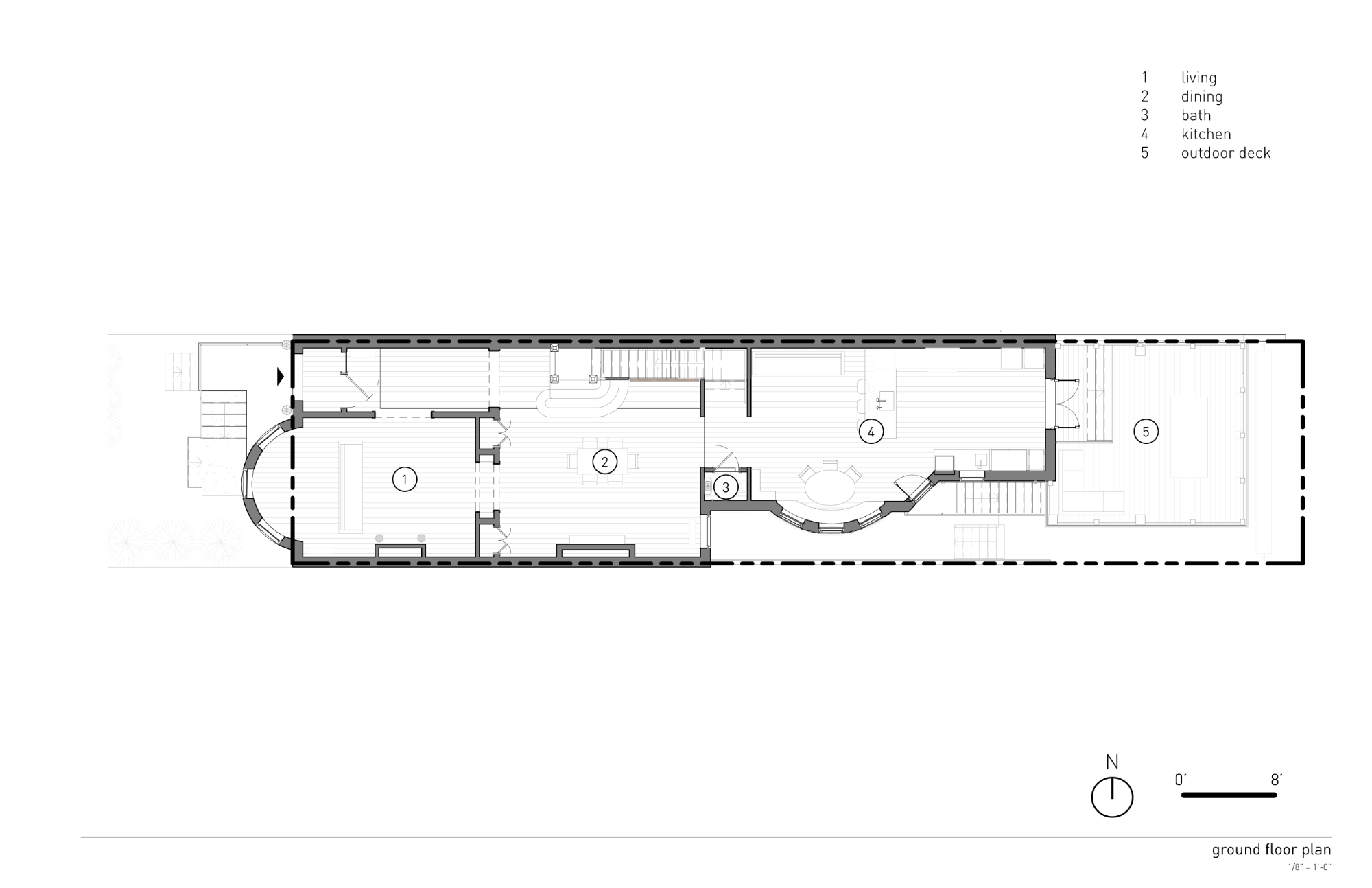
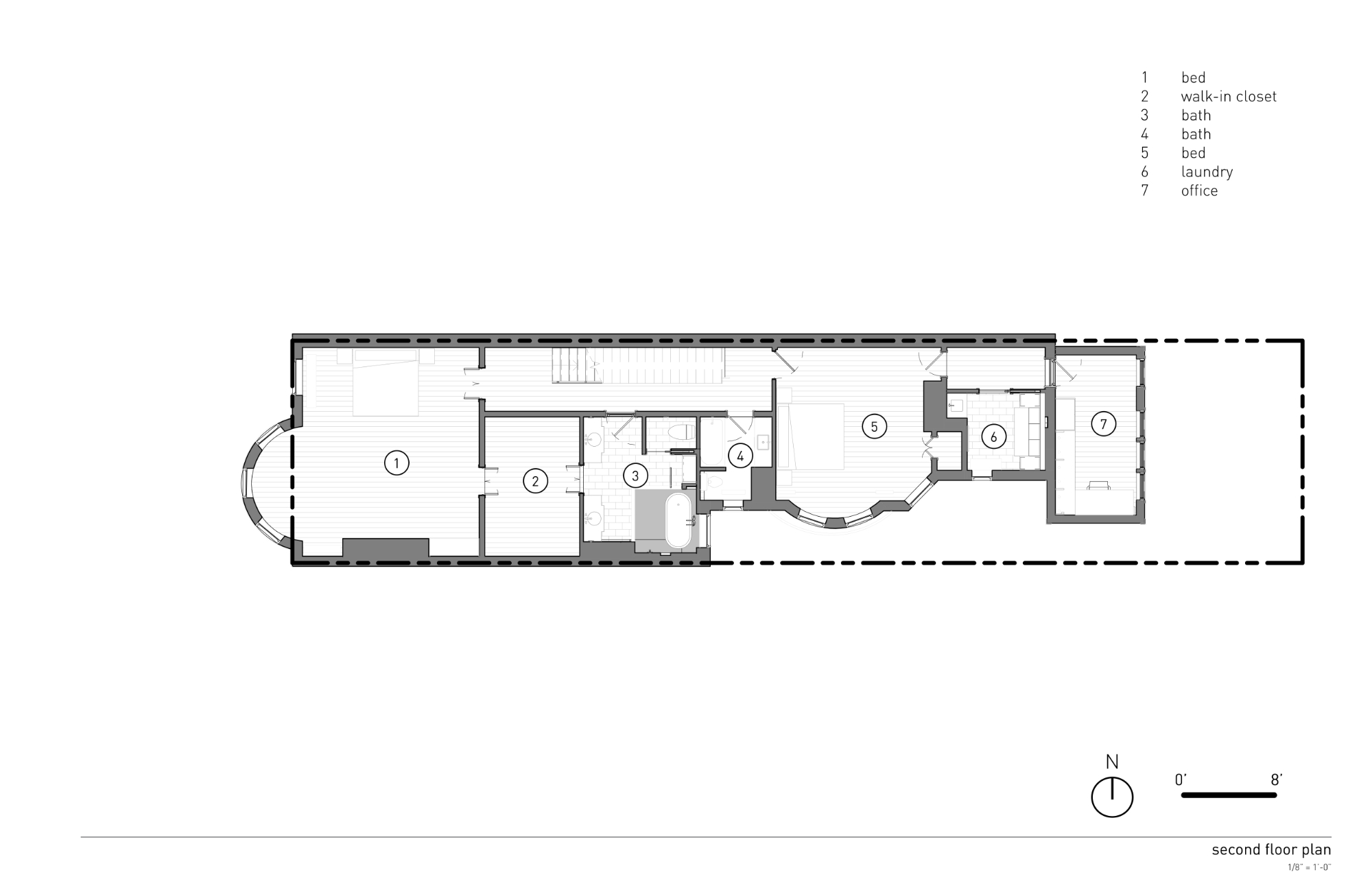
This extensive revival of a grand, historically landmarked Victorian rowhouse in Dupont Circle transformed the space for a family of four, bringing the luxuries of a suburban home to the heart of DC. Thoughtful reconfiguration of inefficient spaces, along with the rebuild of a single-car garage and poorly constructed addition, allowed us to incorporate features that enhance modern urban living: two-car parking, an outdoor kitchen and entertaining space, a wine room, an au pair suite, a functional mudroom complete with a dog wash, a laundry room, and a second home office.
We also designed a bespoke walnut-clad wine cellar to showcase and store the owner’s extensive collection. Custom cabinetry throughout maximized storage, making efficient use of the narrow urban footprint and ensuring that every inch is thoughtfully utilized for modern family needs.
This project was a great collaboration with Fajen & Brown for general contracting and interior design and Cabriole Studio for millwork and cabinetry.
Client
Private
Project Date
2023- 2024


































